Jib Cranes
CraneVeyor’s jib cranes combine ease of operation, exceptional durability, and unmatched value, ensuring smooth, safe, and efficient material handling. Beyond jib cranes, we offer a comprehensive range of solutions, including monorail systems and single- and double-leg gantry cranes, available in various sizes and capacities to meet diverse industrial needs.
Jib cranes
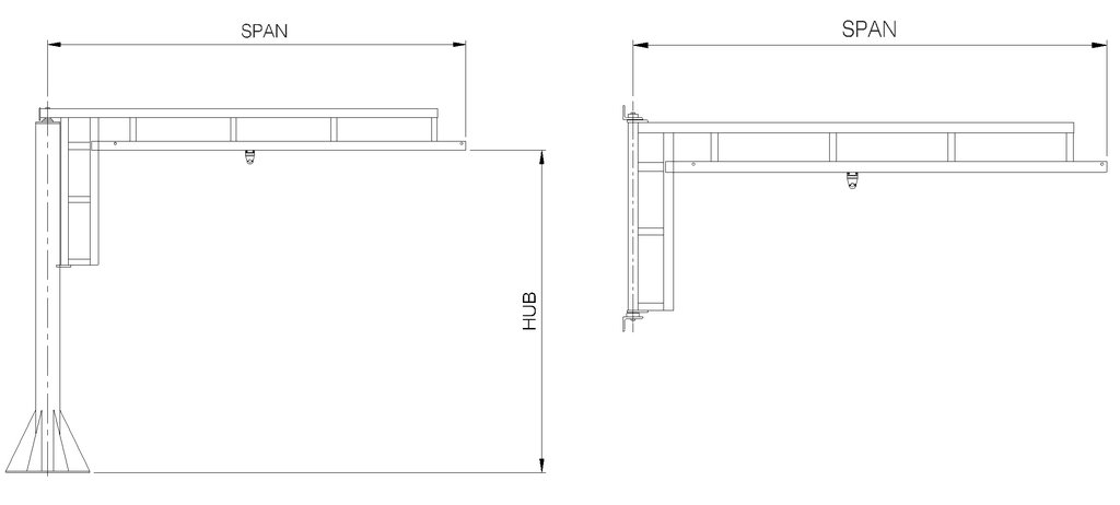
Base mounted jib cranes are a versatile and cost-effective solution for work area coverage with up to 360° rotation. Mounting directly to the floor or foundation, they operate independently of building structures—making them ideal for outdoor installations and open areas. TranStation base mounted jibs deliver reliable performance, easy movement, and lasting durability.
Base Mounted – Model BMJ
360° RotationBase Mounted Jib Cranes mount to a suitable floor or foundation and are independent of the building. The jibs provide work area coverage with up to 360 degree rotation. Base mounted jibs are often your best and most cost effective materials handling solution. Since no extra support is required Jibs Cranes are the best choice for outside installations and open areas.
- Heavy-duty steel construction using a wide-flange I-beam boom designed for long service life and reliable performance
- Self-aligning bushings, top pivot bearing, and roller-bearing type mast rollers ensure smooth, easy rotation under load.
- Capacities are available from 250# to 10,000#, with boom lengths to 16' and heights under boom to 14'.
- Included is a trolley for a hook-on hoist or other device and end stops with rubber bumpers.
- Manual rotation stops
- Bottom entry electrical collector ring or air swivel
- Top entry electrical collector ring or air swivel
- Anchor bolts and template
- Platforms for welding and other equipment
- Base floor plates for special floor conditions and applications
Wall Bracket – Model WBJ
Up to 200° RotationEnclosed track TranStation jib cranes mount to a suitable column or other structure. A qualified engineer must determine that the structure is adequate prior to installation for safety of personnel and property. When properly installed, a wall bracket jib can be your most efficient and cost effective materials handling solution. Up to 200 degree rotation is available.
- Durable all steel construction using a truss design for the mast and the enclosed track boom to provide light weight and years of service.
- A self-aligning ball bushing at the top pivot pin and a tapered roller bearing at the bottom pivot pin provide ease of rotation.
- Capacities are available from 250# to 4000#, with boom lengths to 16'.
- Included is a trolley for a hook-on hoist or other device and end stops with rubber bumpers.
Wall Bracket Jib Crane
Wall Bracket Jib Crane
Interested? Contact us
Base Mounted - Model BMJ
Base Mounted - Model BMJ
Enclosed Track TranStation Jib Cranes mount to a suitable floor or foundation and are independent of the building. The jibs provide work area coverage with up to 360 degree rotation. Base mounted jibs are often your best and most cost effective materials handling solution. Since no extra support is required Base Mounted TranStation Jibs are the best choice for outside installations and open areas.
Model BMJ Base Mounted Jib Crane Features
- Durable steel construction with lightweight and strong TranStation enclosed track boom for years of service.
- Self-aligning ball bushing, top pivot bearing and roller bearing type mast rollers provide easy movement.
- Mast roller assembly is provided with shims to adjust the boom levelness.
- Capacities are available from 100# to 1000#, with boom lengths to 16′ and heights under boom to 14′.
- Included is a trolley for a hook-on hoist or other device and end stops with rubber bumpers.
Wall Bracket (Model WBJ)
Wall Bracket - Model WBJ
Enclosed track TranStation jib cranes mount to a suitable column or other structure. A qualified engineer must determine that the structure is adequate prior to installation for safety of personnel and property. When properly installed, a wall bracket jib can be your most efficient and cost effective materials handling solution. Up to 200 degree rotation is available.
Model WBJ Wall Bracket Jib Crane Features:
- Durable all steel construction using a truss design for the mast and the enclosed track boom to provide light weight and years of service.
- A self-aligning ball bushing at the top pivot pin and a tapered roller bearing at the bottom pivot pin provide ease of rotation.
- Capacities are available from 100# to 1000#, with boom lengths to 16′.
- Included is a trolley for a hook-on hoist or other device and end stops with rubber bumpers.
TranStation Jib Crane Options: (For all jib cranes)
- Festoon trolleys for use with 4 conductor flat cable, round cable or hose
- Vacuum hose trolleys for use with vacuum hose
- Large saddle festoon trolleys for welding cable and hose applications
- 4 cond.-14 AWG flat cable with electrical junction box at rear of boom
- Air hose or coiled hose for festoon
(For base mounted jibs)
- Manual rotation stops
- Bottom entry electrical collector ring or air swivel
- Top entry electrical collector ring or air swivel
- Anchor bolts and template
- Platforms for welding and other equipment
- Base floor plates for special floor conditions and applications
- Double WBJ jib cranes on a common column
A double WBJ type crane setup on a common column is shown above. Each WBJ jib crane supports a welding wire feed to allow the operator to work productively, and there are trolleys with large radius saddles to keep hoses and cables off the floor. An engineered base mounting is provided to secure the column to the concrete slab and platforms are provided for mounting welding power supplies and other equipment-no problem.

